Villa Sao Paulo
Estoril
Portugal
info
Events & Upper Floor
Upper Floor Plan Events Room*

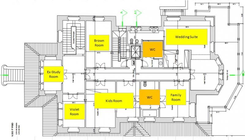
0 - 1st Floors
0 Floor Plan 1st Floor Plan
*Events Room: Maximum capacity: up to 100 seated guests (8 round tables with 12 seated guests each).
This big room of Villa Sao Paulo - Large Wedding Villa by the sea in Portugal has a great view to the Atlantic Ocean, the pool and the garden. Located in the events floor (pool level), the events room is adaptable to any wedding decoration and wedding theme (decoration not included). The room is located next door to the big kitchen, so catering companies can easily serve you. In this floor you will also find our Disco Area, where it usually is setted up the open bar for the late party with our DJ. Perfect for your destination wedding reception in Portugal or any other celebration.
Portugal Wedding Packages - Villa Sao Paulo - Villa Wedding in Lisbon Portugal
Wedding Packages in Portugal - Wedding Venues with accommodation - Wedding Venues by the sea
- Outdoor Wedding Venues - Vintage and Rustic Wedding Venues
- Wedding Ceremonies in Portugal - Lisbon Wedding Celebrant - Indian Weddings in Portugal
Villa Sao Paulo
Estoril
Portugal
info
